Làm vườn là một nghệ thuật và để nghệ thuật ấy luôn tươi mới mà không tốn quá nhiều công sức, việc sở hữu một thiết kế hệ thống tưới tự động bài bản là điều tất yếu. Tại Tata Garden, chúng tôi không chỉ lắp đặt thiết bị; chúng tôi kiến tạo giải pháp chăm sóc cây xanh dựa trên nền tảng kỹ thuật chính xác và sự thấu hiểu thực tế.
1. Làm vườn thong dong bắt đầu từ sự tự động hóa
Trong nhịp sống hiện đại đầy hối hả, khu vườn tại gia không chỉ là nơi trồng cây, mà là “trạm sạc” năng lượng cho tâm hồn sau những giờ làm việc căng thẳng. Tuy nhiên, thực tế thường không như mơ. Nhiều gia chủ bắt đầu với tình yêu cây cỏ mãnh liệt nhưng sớm cảm thấy mệt mỏi bởi việc kéo vòi tưới hàng giờ mỗi ngày, hoặc lo âu mỗi khi đi công tác xa khiến vườn cây héo úa.
Đó là lý do thiết kế hệ thống tưới tự động trở thành giải pháp tất yếu. Không chỉ dừng lại ở việc thay thế sức người, một hệ thống tưới được tính toán khoa học còn giúp cây trồng phát triển bền vững hơn. Tại Tata Garden, chúng tôi định nghĩa lại việc làm vườn: Đó không phải là lao động, đó là sự tận hưởng. Bài viết này sẽ cung cấp cho bạn cái nhìn toàn diện nhất để sở hữu một hệ thống tưới “may đo” hoàn hảo.
Làm vườn thong dong bắt đầu từ sự tự động hóa
2. Tại sao bạn không nên bỏ qua bước lập Sơ đồ hệ thống tưới cây tự động?
Sai lầm phổ biến nhất của các chủ vườn là mua thiết bị về và lắp đặt theo cảm tính. Điều này dẫn đến tình trạng:
- Áp suất nước không đồng đều: Cây ở gần nguồn nước bị úng, cây ở xa lại khô héo.
- Lãng phí nguồn lực: Nước văng tung tóe lên lối đi, tường nhà nhưng không chạm tới gốc cây.
- Hư hại cảnh quan: Đường ống đi lộ liễu, làm mất đi vẻ sang trọng của căn biệt thự hay ban công.
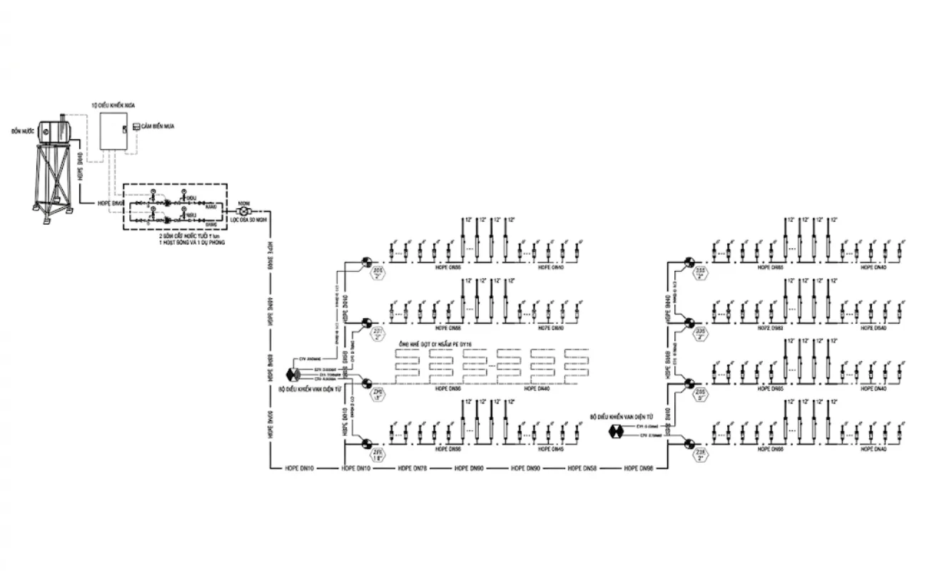
Một sơ đồ hệ thống tưới cây tự động chuyên nghiệp chính là “tờ bản đồ” dẫn đường cho sự hiệu quả. Nó giúp bạn hình dung rõ ràng vị trí đặt máy bơm, cách đi đường ống chính, ống nhánh và đặc biệt là bán kính phun của từng đầu tưới. Việc lập sơ đồ giúp bạn tiết kiệm đến 30% chi phí vật tư phát sinh do mua thừa hoặc mua sai loại thiết bị.
Sơ đồ cấu tạo hệ thống tưới phun mưa
3. Quy trình thiết kế hệ thống tưới tự động chuẩn chuyên gia
Để chuyển đổi từ một khu vườn cần chăm sóc thủ công sang một hệ thống tự vận hành trơn tru, Tata Garden sẽ có những quy trình phù hợp nhất cho từng nhu cầu của khách hàng và sẽ bao gồm những bước cơ bản sau đây:
Bước 1: Khảo sát, đo đạc và thiết kế bản vẽ sơ bộ
Khảo sát không chỉ là đo diện tích, mà là “lắng nghe” hơi thở của khu vườn. Một hệ thống tưới tốt phải phù hợp với địa hình và khí quyển riêng của từng ngôi nhà.
- Diện tích khu vườn: Chúng tôi tiến hành đo chiều dài, chiều rộng và tổng diện tích sàn/vườn. Những góc khuất hoặc khu vực khuất tầm nhìn thường bị bỏ qua, dẫn đến việc thiếu đầu tưới sau này.
- Địa hình và hướng nắng: Vườn có độ dốc cao đòi hỏi kỹ thuật bù áp để nước không dồn hết về vùng trũng. Những khu vực đón nắng gắt (như ban công hướng Tây) sẽ cần lịch trình tưới khác với khu vực bóng râm.
- Loại đất: Đất thịt giữ nước lâu hơn, trong khi đất cát thoát nước nhanh. Nếu không tính đến loại đất, bạn sẽ dễ khiến cây bị thối rễ hoặc thiếu nước cục bộ.
- Loại cây trồng: Cây thân gỗ cần tưới sâu, thảm cỏ cần phun đều bề mặt, và các loài hoa nhạy cảm như lan lại cần phun sương mịn.
- Nguồn nước: Chúng tôi kiểm tra lưu lượng (lít/phút) và áp lực nước. Nếu nguồn nước yếu, việc lắp thêm máy bơm tăng áp là bắt buộc để béc phun hoạt động đúng bán kính.
Bước 2: Xác định hệ thống tưới phù hợp với mục đích sử dụng
Béc tưới nhỏ giọt
Béc tưới phun mưa
Béc tưới phun sương
Sau khi có dữ liệu khảo sát, việc lựa chọn “công nghệ” tưới là bước tiếp theo. Hiện nay, một số phương pháp phổ biến nhất trong thiết kế hệ thống tưới cây tự động đơn giản nhưng cực kỳ hiệu quả mà bạn có thể tham khảo:
| Tiêu chí so sánh | Hệ thống tưới nhỏ giọt | Hệ thống tưới phun mưa | Hệ thống tưới phun sương |
| Đối tượng cây trồng | Cây cảnh trong chậu, cây ăn quả, hàng rào. | Thảm cỏ, vườn rau, hoa bụi thấp. | Lan, cây bắt mồi, làm mát không gian. |
| Ưu điểm nổi bật | Tiết kiệm nước tối đa (50-70%), không văng nước. | Độ phủ rộng, làm mát lá, mô phỏng mưa tự nhiên. | Tạo độ ẩm cực tốt, hạt nước siêu mịn. |
| Khả năng tiết kiệm nước | Rất cao | Trung bình | Cao |
| Độ thẩm mỹ | Cao (Dây đi sát đất/âm đất) | Trung bình (Đầu phun nhô lên) | Cao (Tạo hiệu ứng khói mờ) |
Bước 3: Thiết kế bản vẽ kỹ thuật chi tiết (Sơ đồ mạch dẫn)
Đây là lúc các kỹ sư của Tata Garden tính toán thủy lực để đảm bảo mọi vòi tưới đều nhận đủ áp suất. Có hai sơ đồ cơ bản:
- Sơ đồ Mạch nhánh: Các ống chính dẫn nước đến các khu vực, sau đó rẽ nhánh vào từng cụm cây. Cách này thi công nhanh, phù hợp với các vườn nhỏ hoặc ban công chung cư.
- Sơ đồ Mạch vòng: Ống chính chạy thành một vòng khép kín quanh vườn. Ưu điểm vượt trội là cân bằng áp suất cực tốt, đảm bảo đầu tưới ở cuối vườn vẫn mạnh như đầu vườn. Đây là lựa chọn hàng đầu cho các biệt thự sân vườn lớn.
Sơ đồ mạch nhánh trong thực tế
Bước 4: Tính toán chi phí và dự trù ngân sách
Một hệ thống tưới tự động là khoản đầu tư thông minh. Tại Tata Garden, chúng tôi minh bạch hóa mọi hạng mục để khách hàng dễ dàng đưa ra quyết định:
- Máy bơm tăng áp: Trái tim của hệ thống.
- Bộ điều khiển (Timer/Wifi): Bộ não điều khiển thời gian tưới. Bạn có thể chọn loại điều khiển qua ứng dụng điện thoại để có thể tưới cây khi đang ở bất kỳ đâu trên thế giới.
- Hệ thống béc tưới: Tùy thuộc vào số lượng và thương hiệu (Claber, Dig, …).
- Đường ống và phụ kiện: Ống nhựa LDPE, uPVC chống tia UV, độ bền trên 10 năm.
- Nhân công thi công: Đảm bảo kỹ thuật và tính thẩm mỹ cao nhất.
Có thể bạn quan tâm: Tổng hợp chi phí và báo giá lắp đặt hệ thống tưới tự động từ A-Z
Xem thêm video hướng dẫn thiết kế hệ thống tưới
Bước 5: Thi công và lắp đặt thực tế
Quy trình thi công tại Tata Garden được thực hiện bởi đội ngũ lành nghề, đảm bảo không làm ảnh hưởng đến cảnh quan hiện hữu:
- Lắp đặt cụm trung tâm (Máy bơm + Bộ lọc + Bộ điều khiển).
- Đào rãnh và lắp đặt đường ống chính.
- Lắp đặt các đường ống nhánh và gắn đầu béc tưới.
- Cài đặt chương trình tưới (thường là 2 lần/ngày vào sáng sớm và chiều mát).
- Kiểm tra, nghiệm thu và bàn giao hướng dẫn sử dụng.
4. Những lưu ý nếu bạn muốn tự thiết kế hệ thống tưới cây tự động đơn giản
Nếu bạn là một người thích tự tay chăm sóc (DIY), bạn hoàn toàn có thể tự thực hiện một hệ thống đơn giản cho ban công. Tuy nhiên, hãy nhớ:
- Luôn lắp bộ lọc: Nước máy vẫn chứa cặn bẩn, lâu ngày sẽ làm tắc các lỗ béc phun siêu nhỏ.
- Chọn béc bù áp: Giúp lượng nước ra ở mọi đầu phun là như nhau, dù nguồn nước mạnh hay yếu.
- Chống thấm: Nếu lắp trên sân thượng, hãy đảm bảo các mối nối ống không rò rỉ làm thấm trần nhà.
Có thể bạn quan tâm: Hướng dẫn thiết kế hệ thống tưới tự động tại nhà
5. Làm vườn thong dong – Triết lý sống của người hiện đại
Tại sao chúng tôi gọi đó là “Làm vườn thong dong”? Bởi vì khi hệ thống tưới đã được thiết lập chuẩn xác, bạn sẽ có thêm thời gian để:
- Ngắm nhìn mầm non lớn lên thay vì mải mê kéo dây tưới.
- Tận hưởng những buổi tối tiệc tùng ngoài sân vườn mà không lo mặt đất sũng nước.
- Đi công tác, du lịch mà không cần nhờ vả hàng xóm tưới hộ cây.
Hệ thống tưới tự động không chỉ nuôi dưỡng cây, nó nuôi dưỡng tâm hồn và thời gian của bạn.
Một góc không gian cây xanh nhà khách
6. Tata Garden – Đơn vị tư vấn thiết kế hệ thống tưới tự động uy tín
Với nhiều năm kinh nghiệm trong lĩnh vực cảnh quan và thủy lực, Tata Garden tự hào mang đến giải pháp thiết kế hệ thống tưới tự động mang tính cá nhân hóa cao nhất. Chúng tôi không chỉ cung cấp thiết bị, chúng tôi cung cấp sự an tâm. Chúng tôi cam kết:
- Thiết bị chính hãng: Độ bền cao, chịu được thời tiết khắc nghiệt tại Việt Nam.
- Thiết kế thẩm mỹ: Hệ thống ống được giấu kín tinh tế, bảo tồn vẻ đẹp của kiến trúc.
- Hỗ trợ kỹ thuật 24/7: Chế độ bảo trì, bảo dưỡng định kỳ giúp hệ thống luôn hoạt động ổn định.
Thiết kế một hệ thống tưới không khó, nhưng để thiết kế được một hệ thống hoạt động hiệu quả, tiết kiệm và bền bỉ thì cần sự am hiểu sâu sắc về kỹ thuật. Hy vọng bài viết này đã giúp bạn nắm rõ quy trình từ bản vẽ sơ đồ hệ thống tưới cây tự động đến lúc thi công hoàn thiện.
Đã đến lúc để khu vườn của bạn tự chăm sóc chính nó. Hãy liên hệ với Tata Garden ngay hôm nay để nhận tư vấn và bản vẽ thiết kế sơ bộ hoàn toàn miễn phí!
TATA GARDEN – LÀM VƯỜN THONG DONG
Chi nhánh TP.HCM
Địa chỉ: Số 15, đường số 3, Khu dân cư Gia Hòa, Phường Phước Long, TP. Hồ Chí Minh
Email: cskh@tatagarden.vn
Điện thoại: 0916 909 087
Chi nhánh Hà Nội
Địa chỉ: Số 6/1 Liền kề New House Xa La, KĐT Xa La, Phường Hà Đông, Thành phố Hà Nội
Email: cskh@tatagarden.vn
Điện thoại: 0916 146 276

